首頁 > 房屋出售 > 誠昱/總圖旁臨20米路金賺店面
第一房屋仲介 - 誠昱/總圖旁臨20米路金賺店面

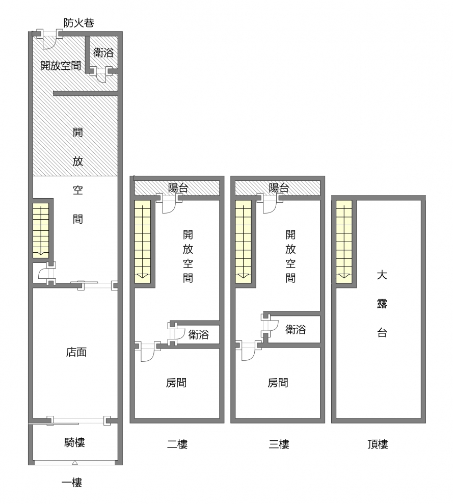
誠昱/總圖旁臨20米路金賺店面

店面      2680萬

系統編號

物件區域
710台南市永康區

物件地址
中山南路

地坪
33.15 坪

總建坪
38.32 坪

室內坪數
38.32 坪

主建物坪
38.32 坪

總樓層
3 樓

位於樓層
1~3 樓

格局
2房4廳3衛2陽台

房屋座向
座南朝北

採光面數
2 面採光

建物結構
加強磚造

建築完工
1975年 屋齡約51年

臨路寬度
約20 米路

鄰近市場
傳統市場

鄰近學區
永信國小|永康國中

公園綠地
社區公園

特色說明
1.正20米路中山南路上,砲校正對面,醒目店面。
2.大地坪,一樓店面,二樓以上可規劃住家,使用空間大。
3.周遭環境優越,永康創意園區、台南總圖書館、萬坪公園近在咫尺。
4.坐擁中山南路商圈、東橋商圈、復國商圈,地段優勢無可比擬。
5.周邊眾多商家林立,帶來繁華活力,文武百市皆通。
6.2025年底砲校即將遷移完畢,商機無限。
7.快來把握機會,成就夢想的經營據點!

※以上資訊如有記載錯誤,一律依謄本登記簿為準

 - 誠昱/總圖旁臨20米路金賺店面
 - 誠昱/總圖旁臨20米路金賺店面
 - 誠昱/總圖旁臨20米路金賺店面
 - 誠昱/總圖旁臨20米路金賺店面
 - 誠昱/總圖旁臨20米路金賺店面
 - 誠昱/總圖旁臨20米路金賺店面
 - 誠昱/總圖旁臨20米路金賺店面
 - 誠昱/總圖旁臨20米路金賺店面
 - 誠昱/總圖旁臨20米路金賺店面
 - 誠昱/總圖旁臨20米路金賺店面
 - 誠昱/總圖旁臨20米路金賺店面
 - 誠昱/總圖旁臨20米路金賺店面
 - 誠昱/總圖旁臨20米路金賺店面
 - 誠昱/總圖旁臨20米路金賺店面
推薦物件...

誠昱/東橋整新大中島3房.

誠昱/東橋整新大中島3房.
698 萬

誠昱/安平永華博悅精品三.

誠昱/安平永華博悅精品三.
2980 萬

誠昱/官田角秀九分農建地

誠昱/官田角秀九分農建地
5405 萬

誠昱/市政大道全新2房2.

誠昱/市政大道全新2房2.
998 萬

誠昱/鹽水角窗全新電梯車.

誠昱/鹽水角窗全新電梯車.
2250 萬

誠昱/後港庄內臨路方正農.

誠昱/後港庄內臨路方正農.
1100 萬

誠昱/南應大/鹽行商圈全.

誠昱/南應大/鹽行商圈全.
2680 萬

誠昱/港明12米合法資材.

誠昱/港明12米合法資材.
680 萬


更多..
地圖
分享到臉書